در مهندسی برق، برای اطمینان از اینکه مدار الکتریکی برای سرویس یا تعمیر و نگهداری کاملاً قطع شده است، از یک قطع کننده، کلید جداکننده یا کلید جداکننده استفاده می شود.آنها فقط برای شکستن مدار استفاده می شوند و اغلب در توزیع برق و پست ها یافت می شوند، جایی که ماشین آلات باید منبع نیروی محرکه خود را برای تنظیم یا تعمیر حذف کنند.جداکننده ها می توانند دستی یا موتوری باشند و ممکن است با یک سوئیچ ارت جفت شوند تا قسمتی که از سیستم جدا شده است برای اطمینان از ایمنی تجهیزات و پرسنل کار بر روی آن به زمین متصل شوند. کلیدهای ایزوله فشار قوی در پست های برق استفاده می شوند. اجازه جداسازی دستگاه هایی مانند کلیدهای مدار، ترانسفورماتورها و خطوط انتقال را برای تعمیر و نگهداری می دهد.جداکننده معمولاً برای کنترل معمولی مدار در نظر گرفته نشده است، بلکه فقط برای ایزوله کردن ایمنی است.بر خلاف کلیدهای بار و قطع کننده های مدار، جداکننده ها فاقد مکانیزمی برای سرکوب قوس الکتریکی هستند، که زمانی رخ می دهد که هادی های حامل جریان های بالا دچار قطع شدن الکتریکی شوند.بنابراین، آنها دستگاه های خارج از بار، با ظرفیت شکست بسیار کم هستند که تنها پس از قطع جریان توسط برخی از دستگاه های کنترل دیگر، در نظر گرفته شده اند که باز شوند.
| وضعیت در دسترس بودن: | |
|---|---|
RH-B-33
خلاصه
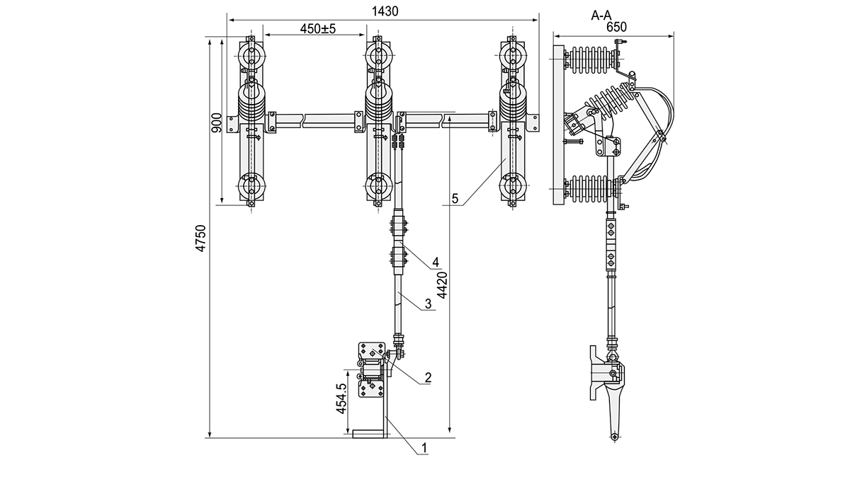
سوئیچ جداکننده AC Gang در فضای باز 11KV/400A-33KV/600A مورد استفاده در مدار برق 3 فاز AC 50/60Hz، به عنوان روشن و خاموش کننده در ولتاژ بدون بار استفاده می شود.این به استاندارد IEC اعمال می شود.IEC60964: 1996، IEC62271-102:2002
مشخصات فنی
ابعاد طرح
خلاصه
سوئیچ جداکننده AC Gang در فضای باز 11KV/400A-33KV/600A مورد استفاده در مدار برق 3 فاز AC 50/60Hz، به عنوان روشن و خاموش کننده در ولتاژ بدون بار استفاده می شود.این به استاندارد IEC اعمال می شود.IEC60964: 1996، IEC62271-102:2002
مشخصات فنی
ابعاد طرح
عایق های سرامیکی که عمدتاً از سیلیکات آلومینا تشکیل شده اند، اجزای حیاتی در خطوط انتقال و توزیع هوایی هستند. قابلیت اطمینان طولانی مدت آنها توسط عوامل استرس زای محیطی به چالش کشیده می شود که منجر به تخریب عملکرد می شود. این مقاله مکانیسمهای اساسی پیری عایقهای سرامیکی را با تمرکز بر تشعشعات فرابنفش (UV) و تجمع آلودگی تجزیه و تحلیل میکند. این بیشتر آخرین پیشرفتها در فناوریهای پوشش عملکردی را که برای کاهش این اثرات طراحی شدهاند، بررسی میکند، در نتیجه عمر سرویس را افزایش میدهد و انعطافپذیری شبکه را تضمین میکند.
برای چندین دهه، ماموریت اصلی برقگیر ثابت مانده است: محافظت از تجهیزات الکتریکی در برابر اضافه ولتاژهای گذرا، خواه ناشی از برخورد صاعقه یا عملیات سوئیچینگ، با ایجاد یک مسیر با امپدانس کم به زمین و بازیابی سریع عملکرد عادی سیستم. با این حال، ابزار دستیابی به این مأموریت دستخوش تحولی اساسی است. با توجه به تقاضاهای شبکه های برق مدرن - افزایش یکپارچگی انرژی های تجدیدپذیر، دیجیتالی شدن و نیاز به قابلیت اطمینان بیشتر - فناوری مهارکننده در حال حرکت فراتر از نقش سنتی و غیرفعال خود به عصر اجزای هوشمند، تطبیقی و بسیار انعطاف پذیر است.
کلیدهای ایزولاتور که با نام کلیدهای جداکننده یا ایزولاتور نیز شناخته می شوند، اجزای اساسی در سیستم های قدرت الکتریکی هستند. عملکرد اصلی آنها فراهم کردن یک نقطه شکست قابل مشاهده برای جداسازی، تضمین نگهداری و تعمیر ایمن تجهیزات پایین دست است. برخلاف کلیدهای مدار، آنها برای قطع جریان بار یا جریان خطا طراحی نشده اند. با این حال، عملکرد قابل اعتماد آنها - باز و بسته شدن بر اساس فرمان - برای ایمنی، انعطاف پذیری و در دسترس بودن سیستم بسیار مهم است.
فیوزها، به عنوان ابزارهای حفاظت غیرفعال حیاتی و اغلب نادیده گرفته می شوند، برای ایمنی الکتریکی اساسی هستند. عملکرد قابل اعتماد آنها به یکپارچگی سطوح عایق و عنصر ذوب پذیر بستگی دارد. این مقاله به دو حالت شکست رایج میپردازد: آلودگی سطحی و پیری/تخریب داخلی. ما یک تجزیه و تحلیل فنی دقیق از مکانیسم ها ارائه می دهیم، تکنیک های شناسایی پیشرفته و عملی را ترسیم می کنیم، و یک پروتکل تعمیر و نگهداری سیستماتیک را برای افزایش قابلیت اطمینان سیستم و جلوگیری از خرابی غیرمنتظره تجویز می کنیم.
انتقال جهانی به سمت شبکه های هوشمند نشان دهنده یک تغییر اساسی در نحوه تولید، توزیع و مصرف انرژی الکتریکی است. شبکه های هوشمند که با جریان دو طرفه قدرت، ادغام عمیق منابع انرژی توزیع شده (DER) مانند خورشید و باد، زیرساخت اندازه گیری پیشرفته (AMI) و تجزیه و تحلیل داده های بلادرنگ مشخص می شوند، نسل جدیدی از دستگاه های حفاظتی را می طلبند. در این میان، فیوز فروتن، سنگ بنای حفاظت الکتریکی برای بیش از یک قرن، دستخوش یک تحول عمیق تکنولوژیکی شده است. آینده فناوری فیوز در تکامل از یک جزء محافظ ساده و فداکارانه به یک دارایی شبکه هوشمند، سازگار و غنی از داده است.
برای چندین دهه، ماموریت اصلی برقگیر ثابت مانده است: محافظت از تجهیزات الکتریکی در برابر اضافه ولتاژهای گذرا، خواه ناشی از برخورد صاعقه یا عملیات سوئیچینگ، با ایجاد یک مسیر با امپدانس کم به زمین و بازیابی سریع عملکرد عادی سیستم. با این حال، ابزار دستیابی به این مأموریت دستخوش تحولی اساسی است. با توجه به تقاضاهای شبکه های برق مدرن - افزایش یکپارچگی انرژی های تجدیدپذیر، دیجیتالی شدن و نیاز به قابلیت اطمینان بیشتر - فناوری مهارکننده در حال حرکت فراتر از نقش سنتی و غیرفعال خود به عصر اجزای هوشمند، تطبیقی و بسیار انعطاف پذیر است.
برقگیرهای خط توزیع (DLSA) به عنوان دستگاه های حفاظتی حیاتی نصب شده بر روی سیستم های توزیع برق سربار، معمولاً بین 1 کیلو ولت و 38 کیلو ولت کار می کنند. وظیفه اصلی آنها محافظت از تجهیزات الکتریکی، ترانسفورماتورها و زیرساخت ها در برابر اضافه ولتاژهای گذرا ناشی از برخورد صاعقه، عملیات سوئیچینگ و سایر اختلالات الکتریکی است.
مسکو، روسیه - از 2 تا 4 دسامبر 2025، ژجیانگ هایوو با موفقیت در نمایشگاه بین المللی تجهیزات شبکه برق در روسیه شرکت کرد و آخرین نوآوری های خود را در زمینه حفاظت از برق و فناوری توزیع برق ارائه کرد.
قطع فیوزهای خروجی اجزای حیاتی در سیستم های توزیع بالای سر هستند که حفاظت و ایزوله در برابر جریان اضافه را فراهم می کنند. با این حال، قرار گرفتن طولانی مدت در معرض تنش های محیطی، الکتریکی و مکانیکی منجر به پیری می شود که عملکرد و قابلیت اطمینان را به خطر می اندازد. این مقاله مکانیسمهای اولیه پیری را بررسی میکند و استراتژیهای پیشگیری و نگهداری موثر را برای افزایش عمر سرویس و تضمین ایمنی سیستم تشریح میکند.
سیستمهای دوشاخه و پریز ولتاژ بالا در فضای باز (معمولاً 1 کیلو ولت تا 52 کیلو ولت) راهحلهای مهندسی پیچیدهای را ارائه میکنند که برای اتصالات برق ایمن و قابل اعتماد در محیطهای پر تقاضا طراحی شدهاند. این کانکتورهای قابل جداسازی، توزیع برق انعطافپذیر را در عین حفظ یکپارچگی سیستم در شبکههای شهری، تأسیسات صنعتی و کاربردهای انرژی تجدیدپذیر امکانپذیر میسازند. بر خلاف همتایان ولتاژ پایین، کانکتورهای HV نیازمند توجه دقیق به کنترل میدان الکتریکی، هماهنگی عایق و حفاظت از محیط زیست هستند.
پست الکترونیک:jonsonchai@chinahaivo.com
WeChat: +86 13587716869
WhatsApp: +86 13587716869
تلفن: 0086-577-62836929
0086-577-62836926
0086-13587716869
0086-15957720101